Головна
Житлова нерухомість
Контакти
077 555 40 55, 067 137 96 24
Паркомісця
в будинках на Карла Мікльоша № 1-Г та № 1-Д
всього 70 машиномісць
МАШИНОМІСЦЯ
(перша черга)
площами від 13 до 24 кв.м
Будинок_№ 1-Д
Будинок_№1-Г
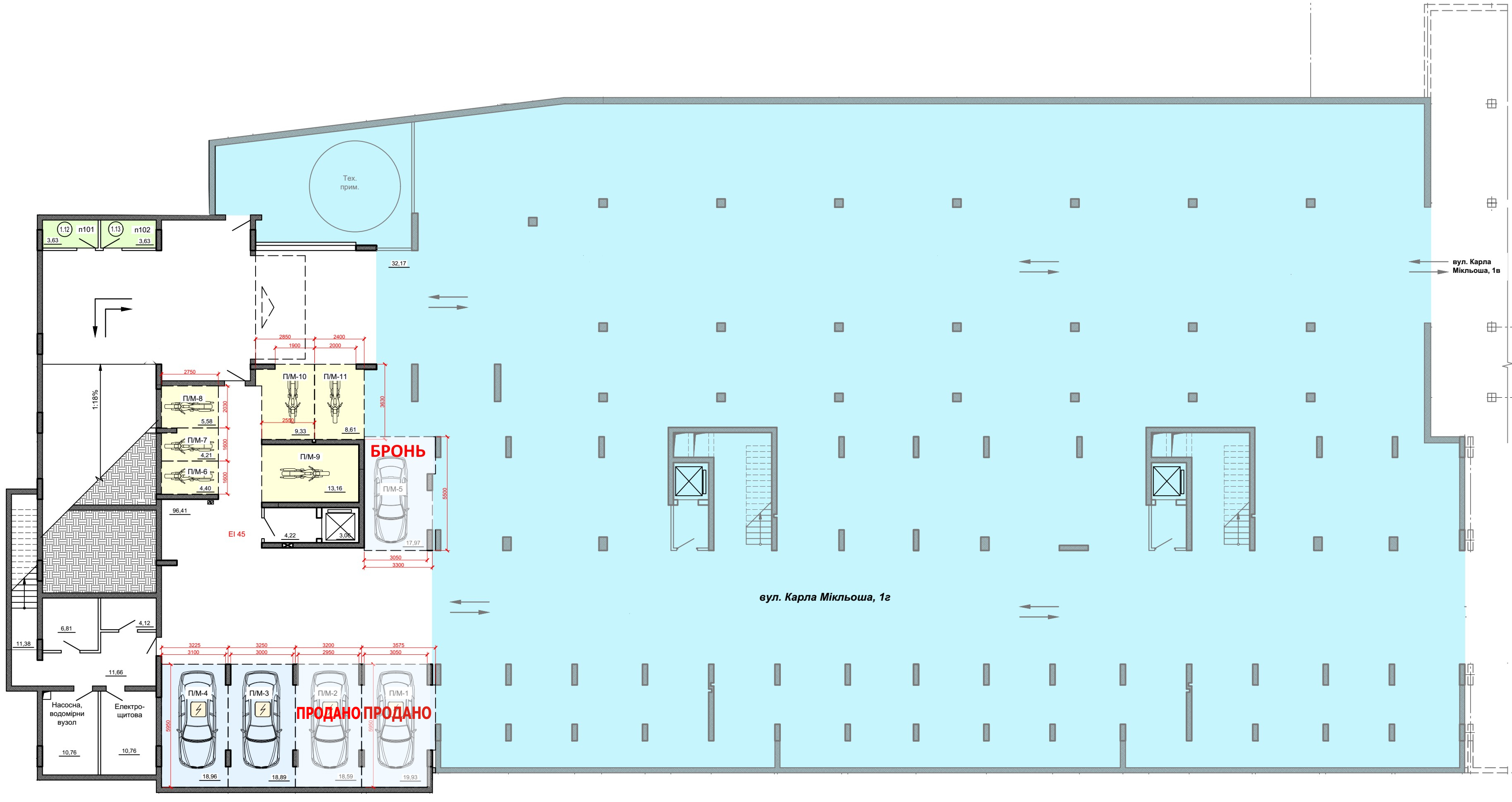
Загальний план паркінгу
План розміщення машин в паркінгу під двома будинками
Детально
№ П/М
Площа
Статус
3
18.89
резерв
4
18.96
резерв
6
4.4
вільнe
7
4.21
резерв
8
5.58
резерв
9
13.16
вільнe
10
9.33
вільнe
11
8.61
вільнe
Загальний план паркінгу
План розміщення машин в паркінгу під двома будинками
Детально
№ П/М
Площа
Статус
1
16.11
вільнe
3
16.78
резерв
15
14.17
продаж
16
14.17
вільнe
17
13.25
резерв
23
15.52
вільнe
24
15.52
вільнe
25
15.52
резерв
26
15.52
вільнe
28
15.58
вільнe
№ П/М
Площа
Статус
41
16.47
вільнe
50
16.05
продаж
51
16.39
резерв
57
7.91
вільнe
58
7
вільнe
59
7
резерв
© Copyright 2013 - All Rights Reserved